677-03 Aluhalle
2025

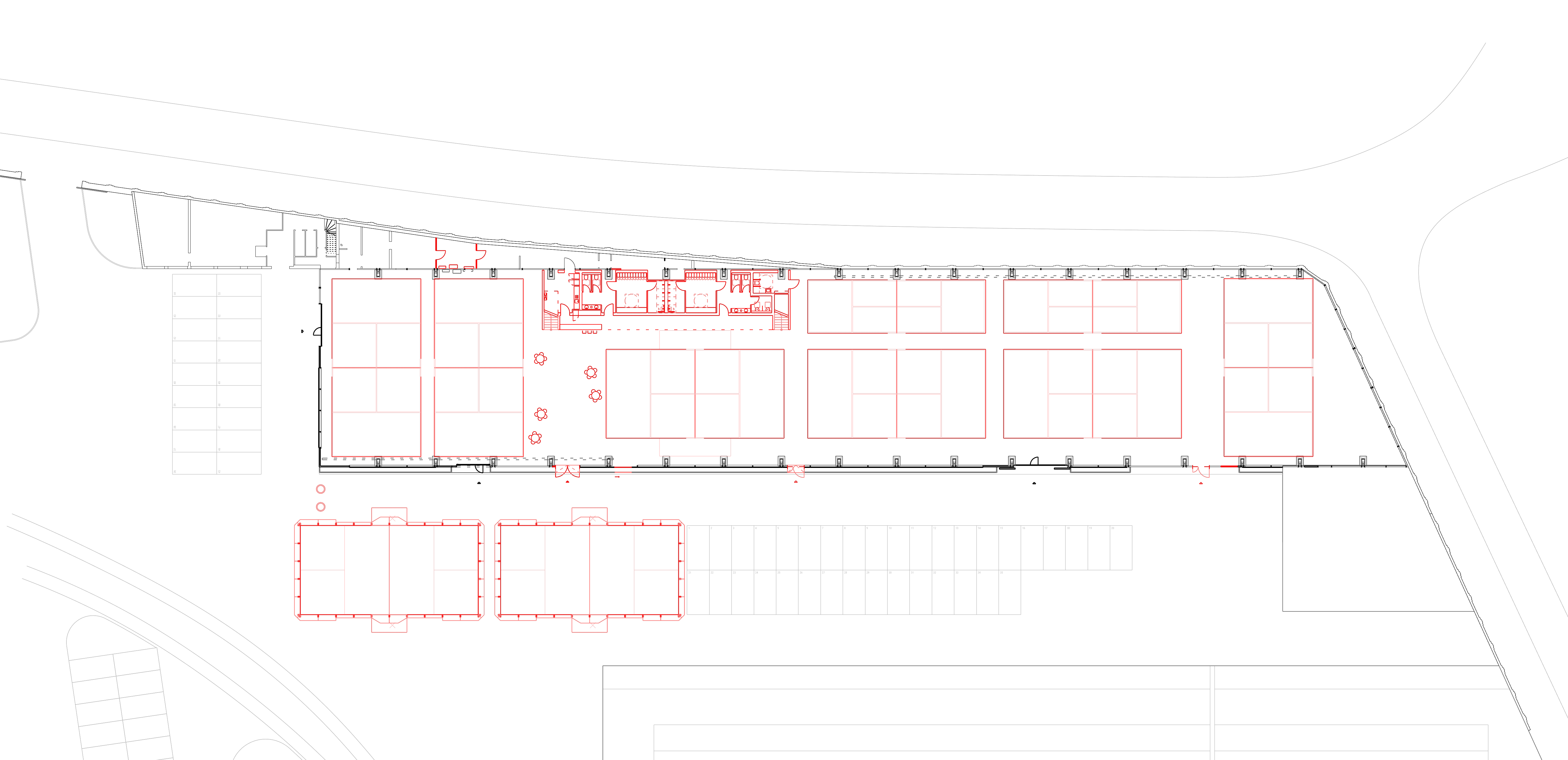
Auf acht Spielfeldern wird man zukünftig in der Aluhalle Padel spielen können. Hierfür planen wir einen Halleneinbau in Holztafelbauweise, welcher eine Bar, Umkleiden und WCs beherbergt. Auf der Dachterasse des Einbaus lassen sich dann künftig die Spiele bei einem kühlen Getränk verfolgen.
Bauherr: ASP Sportstätten GmbH
Fertigstellung: in Fertigstellung
Größe: 2.200 qm
Ort: Köln-Mülheim
Leistungen: Lph. 1-8 HOAI
Bauherr: ASP Sportstätten GmbH
Fertigstellung: in Fertigstellung
Größe: 2.200 qm
Ort: Köln-Mülheim
Leistungen: Lph. 1-8 HOAI






